Nhà đẹp qua từng khung hình.
Nhà mái Mansard

Bản vẽ nhà mái Mansard giải pháp không gian đẹp hiện đại

Minh Tuấn
4 phút đọc
Bản vẽ nhà mái Mansard giải pháp không gian đẹp hiện đại
Bản vẽ nhà mái Mansard mang đến giải pháp thiết kế sang trọng, tối ưu công năng và chi phí, phù hợp nhiều loại hình nhà ở hiện đại và bền vững theo thời gian.

Bản vẽ nhà mái Mansard đang trở thành lựa chọn được nhiều gia chủ quan tâm nhờ vẻ đẹp sang trọng và khả năng tối ưu không gian sống. Mỗi bản vẽ thể hiện rõ công năng khoa học, tính thẩm mỹ cao và giá trị sử dụng lâu dài.

Giới thiệu khái quát về bản vẽ nhà mái Mansard

Bản vẽ nhà mái Mansard đang tạo nên sức hút mạnh mẽ nhờ vẻ đẹp cổ điển Châu Âu đầy sang trọng. Từng đường nét trong bản vẽ nhà mái Mansard thể hiện sự tinh tế về tỉ lệ, công năng và thẩm mỹ, giúp người xem dễ dàng hình dung không gian sống đẳng cấp và bền vững theo thời gian.

Khám phá ảnh bản vẽ nhà mái Mansard đẹp hài hòa tinh tế
Khám phá ảnh bản vẽ nhà mái Mansard đẹp hài hòa tinh tế

Khám phá tại đây: Phối cảnh nhà mái Mansard nổi bật phong cách châu Âu

Tổng hợp những ảnh về bản vẽ nhà mái Mansard tuyệt đẹp

Những hình ảnh tổng hợp về bản vẽ nhà mái Mansard mang đến cảm giác choáng ngợp bởi kiến trúc bề thế và mái vòm đặc trưng. Qua từng bản vẽ nhà mái Mansard, người xem cảm nhận rõ sự kết hợp hài hòa giữa nghệ thuật cổ điển và giải pháp thiết kế hiện đại.

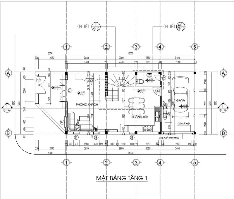
Xem ảnh bản vẽ nhà mái Mansard hiện đại tối ưu công năng
Xem ảnh bản vẽ nhà mái Mansard hiện đại tối ưu công năng
Chiêm ngưỡng ảnh bản vẽ nhà mái Mansard cổ điển sang trọng
Chiêm ngưỡng bản vẽ nhà mái Mansard cổ điển sang trọng
Tham khảo ảnh bản vẽ nhà mái Mansard tân cổ điển tinh xảo
Tham khảo bản vẽ nhà mái Mansard tân cổ điển tinh xảo
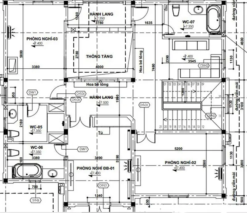
Gợi ý ảnh bản vẽ nhà mái Mansard 2 tầng cân đối đẹp
Gợi ý bản vẽ nhà mái Mansard 2 tầng cân đối đẹp
Tuyển chọn ảnh bản vẽ nhà mái Mansard biệt thự đẳng cấp
Tuyển chọn bản vẽ nhà mái Mansard biệt thự đẳng cấp
Ảnh bản vẽ nhà mái Mansard sang trọng thu hút mọi ánh nhìn
Bản vẽ nhà mái Mansard sang trọng thu hút mọi ánh nhìn
Tổng hợp ảnh bản vẽ nhà mái Mansard phổ biến hiện nay
Tổng hợp bản vẽ nhà mái Mansard phổ biến hiện nay
Cập nhật ảnh bản vẽ nhà mái Mansard xu hướng mới ấn tượng
Cập nhật bản vẽ nhà mái Mansard xu hướng mới ấn tượng
Những ảnh bản vẽ nhà mái Mansard được ưa chuộng nhất
Những bản vẽ nhà mái Mansard được ưa chuộng nhất
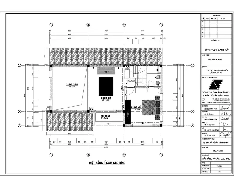
Bộ sưu tập ảnh bản vẽ nhà mái Mansard cao cấp tinh tế
Bộ sưu tập bản vẽ nhà mái Mansard cao cấp tinh tế
Khám phá ảnh bản vẽ nhà mái Mansard kiến trúc pháp đẹp
Khám phá bản vẽ nhà mái Mansard kiến trúc Pháp đẹp
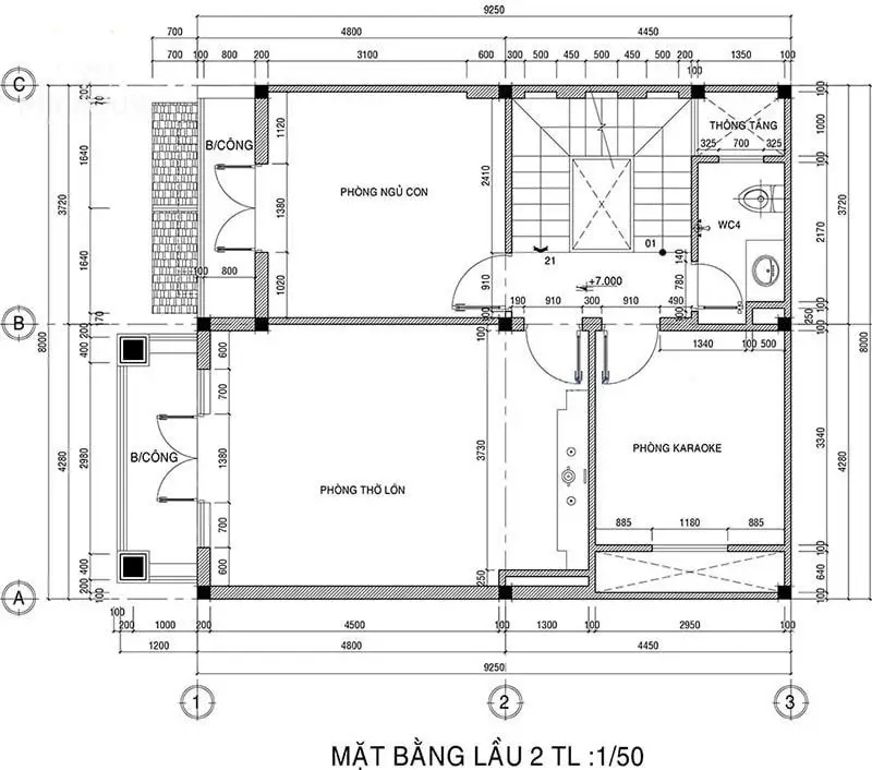
Ảnh bản vẽ nhà mái Mansard tối ưu không gian sống tiện nghi
Bản vẽ nhà mái Mansard tối ưu không gian sống tiện nghi
Khám phá ảnh bản vẽ nhà mái Mansard độc đáo khác biệt
Khám phá bản vẽ nhà mái Mansard độc đáo khác biệt

Khám phá tại đây: Nhà mái Mansard Châu Âu giải pháp nâng tầm không gian sống

Kết luận

Bài viết giúp làm rõ giá trị thẩm mỹ và ứng dụng thực tế của bản vẽ nhà mái Mansard qua góc nhìn hình ảnh. Cá nhân tôi cho rằng đây là lựa chọn đáng đầu tư cho không gian sống sang trọng. Hãy để lại ý kiến hoặc chia sẻ cảm nhận của bạn.